• ProIng | The art of efficient production
  • Tel. +49 511 762-18201

Fabrikneubau

Die Dr. Kaiser Diamantwerkzeuge GmbH & Co. KG ist ein mittelständisches Unternehmen im niedersächsischen Celle. Hier produziert der Werkzeughersteller mit ca. 350 Mitarbeitern hochgenaue Abrichtwerkzeuge, Abricht-Spindelsysteme, Verschleißschutzkomponenten und Schleifscheiben für die Präzisionsbearbeitung. Die Firma befindet sich heute in einer Innenstadtlage mit entsprechenden räumlichen Restriktionen, die ein weiteres Wachstum des Unternehmens verhindern. Struktur und Layout sind organisch gewachsen, woraus physische und prozessuale Intransparenzen resultieren. Die Materialflüsse und die Logistik können nicht optimal gestaltet werden.

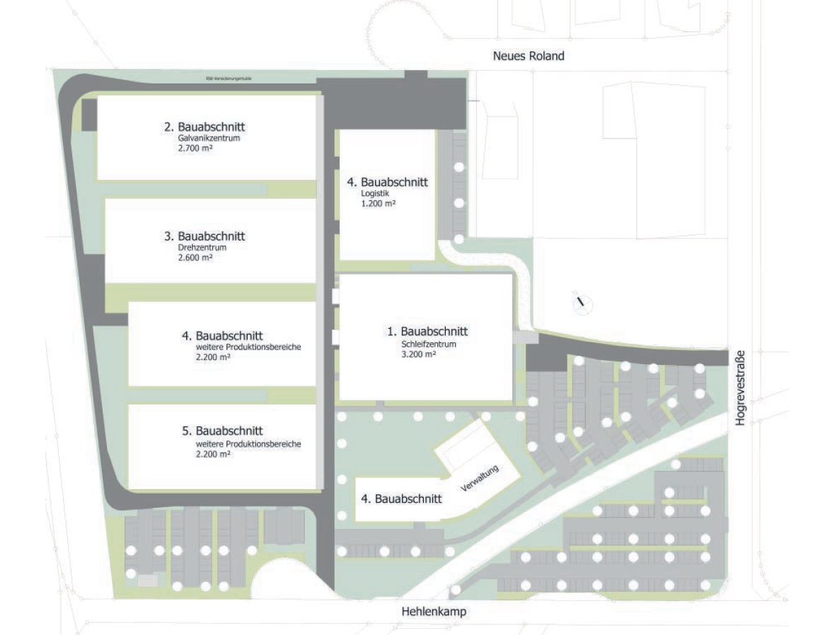
Aus diesen Gründen hat die Firma Dr. Kaiser schon vor einigen Jahren ein Grundstück im Gewerbegebiet Celle-Altenhagen erworben und strebt einen Werksneubau in einzelnen Bauabschnitten verteilt über mehrere Jahre an. Ziel des Neubauprojekts ist insbesondere die Vergrößerung der Nutzflächen, um das bisherige Wachstum auch zukünftig realisieren zu können. Des Weiteren sollen eine deutliche Erhöhung der Transparenz und die ganzheitliche Optimierung der Produktion erreicht werden.

Dr. Kaiser Diamantwerkzeuge hat die ProIng Produktionsberatung mit der Werks- und Fabrikplanung beauftragt. Nach der Auswahl eines Bauunternehmes wurde der ProIng Produktionsberatung zudem die Gesamtprojektleitung für die Realisierung des ersten Bauabschnitts übertragen. Ein ProIng-Berater hat in diesem Rahmen die Mittlerfunktion zwischen dem Bauherrn und dem Generalübernehmer sowie das Kosten- und Zeitcontrolling für das Gesamtprojekt übernommen.

Im Einzelnen wurden folgende Leistungen durch ProIng erbracht:

  • Entwicklung einer neuen Unternehmens- und Werksstruktur inklusive Restrukturierung der Organisationseinheiten

  • Entwicklung des Werksmasterplans Celle-Altenhagen inklusive Planung der einzelnen Bauabschnitte

  • Konzeptplanung inklusive Dimensionierung der Betriebsmittel, Flächen und Gebäude

  • Entwicklung der Hallenlayouts der Produktions- und Logistikgebäude

  • Detailplanung des Schleifzentrums (1. Bauabschnitt)

  • Gesamtprojektleitung als Stellvertreter des Bauherrn bei der Realisierung des ersten Bauabschnitts

  • Umzugsplanung und Hochlaufbetreuung des Schleifzentrums

  • Detailplanung des Galvanikzentrums (2. Bauabschnitt)

Parallel zum Neubauprojekt Celle-Altenhagen trägt ProIng im Rahmen weiterer Projekte zur Optimierung der Produktionsprozesse und der Anpassung der Organisation bei und hilft dadurch, das Unternehmen Dr. Kaiser Diamantwerkzeuge für eine erfolgreiche Zukunft fit zu machen.


"ProIng begleitet uns seit 2014 bei allen Planungen rund um den neuen Standort Altenhagen. Wir profitieren maßgeblich von der systematischen Vorgehensweise, dem Know-how und dem großen Engagement, das die ProIng-Mitarbeiter in das Projekt einbringen."

Edmund Kellermann, Geschäftsführer Dr. Kaiser Diamantwerkzeuge GmbH & Co. KG



Bildergalerie